deDeutsch


Das Projekt
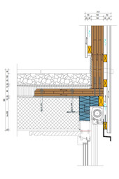
Die Überbauung in Wädenswil mit 34 Wohneinheiten wurde in Stahlbeton erstellt. Die Fassade wurde in Holz mit einer vertikalen Schalung realisiert, druckimprägniert und ist mit einem Farbanstrich versehen. Die Fassadenflächen sind auf verschiedenen Ebenen. Horizontal sind Schürzenbänder jeden halben Stock angebracht, die um das komplette Gebäude führen. Durch die Integration dieser Schürzen in die Fensterbank und Brüstungsabschlüsse, mit teilweisen Höhen- und Tiefenunterschiede, ergeben sich komplexe Geometrien, die auszubilden waren. Aufgrund der vertikalen Schalung musste die Unterkonstruktion horizontal erstellt sein. Um nicht eine zweifache Unterkonstruktion für die Hinterlüftung ausführen zu müssen, wurde die Unterkonstruktion mit versetzt angeordneten Latten gebildet, damit die Hinterlüftung noch gewährleistet ist.
Die Bauweise
Ein Kreuzrost wird auf die Aussenwand aufgebracht. Hierbei muss die erste Lattung, um die Toleranzen des Massivbaus aufnehmen zu können, geschiftet werden. Für die Reduktion der Wärmebrücken ist der zweite Rost, anstelle horizontal, nun vertikal angebracht. Das Windpapier schützt die Dämmung vor dem Auskühlen durch den Windeinfluss. Darüber wird die Hinterlüftungslattung sowie die Fassadenschalung montiert.
Die Herausforderung
Die Befestigung der Brüstungen, welche nicht auf den Beton befestigt werden konnten, mussten mit einer dicken Dreischichtplatte überbrückt und zurückverankert werden. Bei der Fassade sind die genauen Ausbildungen der Schürzen, mit den geometrisch anspruchsvollen Blechteile, eine Herausforderung.
Baudaten
- Fassadenbekleidung ca. 4'500 m2
Baukosten
- BKP 214: 1'968'306.Schweizer Franken
Leistungen Timbatec
- SIA Phase 41 Ausschreibung und Offertenvergleich
- SIA Phase 51 Ausführungsprojekt
- Fassadenplanung
Architekt
Noldin Immobilien AG 8004 Zürich
Bauherrschaft
Noldin Immobilien AG 8004 Zürich
Holzbauingenieur
Timbatec Holzbauingenieure Schweiz AG 8005 Zürich
Holzbau
Kälin Holz Technik AG 8840 Trachslau
Bauingenieur
Urech Bärtschi Maurer AG 8037 Zürich
Bauphysik
FEAG Facility Engineering AG 8305 Dietlikon
Photographie
© René. Dürr, 8046 Zürich