Record du monde : un panneau CLT de 650m2

04.09.2020

Dans le Tyrol autrichien, une construction en bois est actuellement en cours de réalisation avec un panneau en bois lamellé-croisé de 650m2. C'est un record mondial ! C'est la technologie TS3 - un développement de Timbatec en collaboration avec l'EPF de Zurich et la Haute école spécialisée bernoise - qui le rend possible.

Record du monde : un panneau CLT de 650m2

La technologie TS3 représente un un saut quantique : elle libère la construction en bois des petites structures et la transforme en une véritable alternative au béton armé traditionnel. TS3 est un procédé qui permet de générer de grandes surfaces à partir du bois - sans les des poutres habituelles. Ces grandes surfaces peuvent remplacer le béton armé dans la plupart des cas. remplacer dans certains domaines.

Scellement du joint TS3

Le processus
TS3 relie des éléments de construction en bois par leurs faces. Pendant des décennies, cela a été considéré comme impossible. Dix années de recherche de Timbatec, en collaboration avec l'EPF de Zurich et la Haute école spécialisée bernoise, ont été nécessaires, pour trouver la solution : Un procédé avec une résine bi-composante résine de coulée polyuréthane. Cette résine lie les éléments en bois de manière rigide. entre eux. Pour le projet Handl, dans le village autrichien de Vorarlberg, les faces des panneaux ont été traitées dans l'usine CLT de la société Binder à Unternberg ont été prétraitées avec le primaire spécial TS3 et ont été immédiatement des bandes d'étanchéité et de segmentation. Les panneaux de 3.5 mètres de large et en partie pesant plus de cinq tonnes ont été chargés juste à temps et transportés avec directement sur le chantier de Pians.

Prétraitement des panneaux CLT dans l'usine de fabrication de la société Binder

Les panneaux en bois lamellé-croisé sont posés sur les poteaux en bois avec une trame de 7 x 7 mètres. Pour le montage, un échafaudage d'apprentissage a également été a été réalisé. Un technicien d'application peut ainsi réaliser les joints avec la colle spécialement conçue pour TS3. de la colle à deux composants développée à cet effet. Au bout de quelques jours seulement, il a été possible de l'échafaudage a pu être retiré. C'est ainsi que le plus grand panneau CLT du monde a vu le jour.

Montage des panneaux CLT sur un échafaudage de formation

Le maître d'ouvrage
Markus Handl Beteiligung GmbH est une entreprise familiale autrichienne basée à Pians / Tyrol et de véritables spécialistes lorsqu'il s'agit de fournir des spécialités de viande et de charcuterie à l'hôtellerie et à la gastronomie haut de gamme du Tyrol et du Vorarlberg. En mettant l'accent sur le terroir, ils sont dans l'air du temps, car de plus en plus de gens aspirent à l'originalité, au naturel et à l'authenticité. C'est donc tout naturellement que Handl a misé sur le bois, un matériau naturel, pour la construction de son nouveau projet d'envergure.

La collaboration
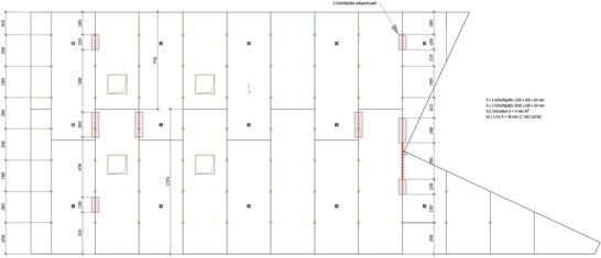
Dans le cadre du projet Handl Timber Structures 3.0 AG (TS3) et Rothoblaas SRL ont travaillé ensemble pour la première fois. ont travaillé ensemble. Le renfort de tête de poteau Spider de Rothoblaas est installé au-dessus des poteaux et dans une grille de installé sur une trame de 7 x 7 mètres. TS3 assure, grâce à la technologie brevetée technologie de scellement, assure l'assemblage résistant à la flexion des différents panneaux CLT. Les X-Fix de la société Schilcher Trading & Engineering ont été utilisés comme aide au montage. GmbH (en vert sur le plan). La responsabilité du projet incombe à HTB Baugesellschaft m.b.H. Pour le calcul de la statique, les entreprises participantes ont été soutenues par l'EPFZ. ont été soutenus et accompagnés par l'EPF de Zurich et l'université d'Innsbruck.

Scellement du joint TS3
Plan
Protection des données
Ce site web utilise des composants externes qui peuvent être utilisés pour collecter des données sur votre comportement. Pour en savoir plus, consultez nos informations sur la protection des données.