Hospital building made entirely of wood

13.04.2021

What was long considered unthinkable is now reality: hospital buildings made entirely of wood. Right next to the Cantonal Hospital of Fribourg, a former convent of the Catholic Church was converted into a psychiatric hospital and expanded with two new buildings made of wood.

Hospital building made entirely of wood

The Freiburg Network for Mental Health (RFSM) is a medical and psychosocial competence center. In outpatient and inpatient treatments, it cares for its patients in three areas patients in the three areas for children and adolescents, for adults and for the elderly. In this new clinic, the German-speaking residents of the canton of Fribourg, who until now have had to go to who until now had to go to Marsens or the canton of Berne for treatment of their canton. A German-run facility has been lacking in the canton until now. The conversion will be carried out in three stages: First, the existing buildings were renovated. The two wooden buildings F and G extend the building complex.

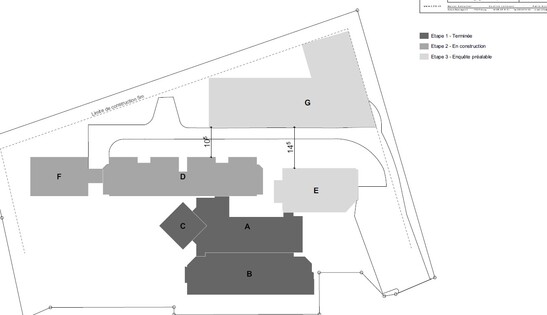
Situation plan

Outline of the Freiburg Network for mental health (RFSM). Buildings A through E have been renovated. Building F is a hospital building made of wood, the office complex G is built almost exclusively of Swiss wood. Source: LZA Architects

Fire protection/basics for hospitals built with wood
Wood is a safe building material. Also in in terms of fire protection. Because this is so, the new generation of fire protection regulations BSV 2015 allows new possibilities for timber construction. Since the introduction of the current fire protection regulations, all buildings may be constructed of wood - regardless of regardless of their use. In short: wood is normalizing as a building material without special regulation. The fire protection standard describes two standard concepts:

  • Structural concept: fire protection concept with mainly structural measures
  • Extinguishing system concept: Fire protection concept with predominantly technical measures


The selected concept results in the requirements for the construction and the building components. The new buildings G and F were constructed according to the structural concept. For building F this means: Each room is a separate fire compartment. A patient must be protected from a fire from a fire in the neighboring room and its smoke development for 60 minutes. minutes. The load-bearing and fire compartment components must be designed as an encapsulated construction. construction. This means that combustible building components must be covered with a suitable building material which does not contribute to the fire, such as gypsum fiberboard.

Details

Three details from the building F. Left: The supporting structure and the floor slab are designed as encapsulated components. The sound insulation is ensured by elastically bonded fill. This means that concrete can be completely dispensed with. Center: The encapsulated supports rest on a steel girder. This supports the encapsulated floor slab. This allows all exterior and interior walls to be non-load-bearing. walls can be non-load-bearing. Right: The elevator shaft of the four-story building is also a wooden construction. wooden construction.

Swiss Wood
Wood is a naturally renewable raw material that requires only solar energy and water for its production. production requires only solar energy and water. Harvesting and processing take place with very little energy, and the material only stores the greenhouse gas CO₂. Wood from Switzerland performs even better: Native wood is not transported is not transported far, which reduces the amount of gray energy it contains. The Building G was certified with the Swiss Wood label.

In the current wood bulletin the RFSM conversion is presented in detail.


Exterior view
Interior view
Privacy notice
This website uses external components that can be used to collect data about your behavior. Read more about this in our privacy policy.